Komfortní rodinný dům 4+kk s garáží k pronájmu, Praha–Vinoř

50 000 Kč za měsíc

Užitná plocha 116 m², pozemek 184 m²

Lipoltická, Praha

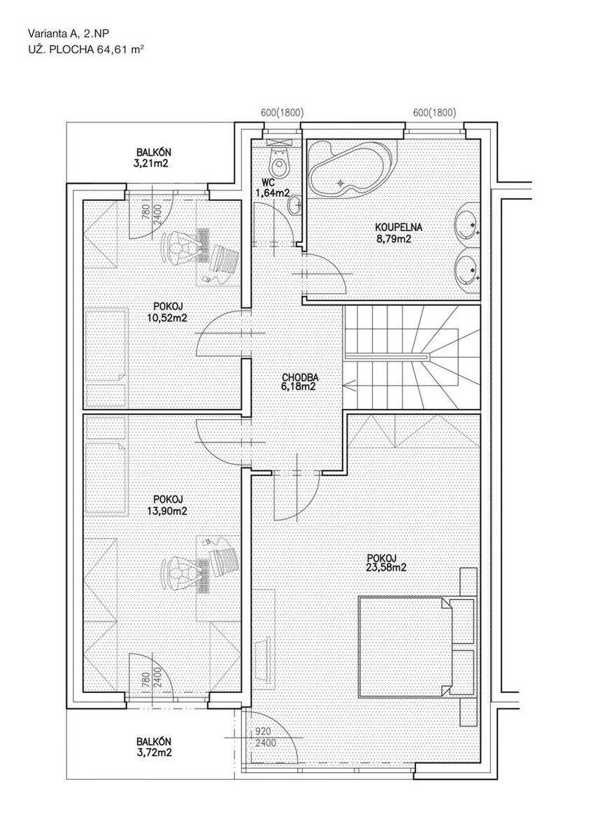
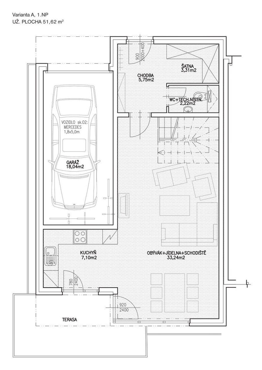
Řadový rodinný dům z roku 2011, součástí bloku 4 řadovek. Sousedí zahradou s dalšími zahradami zástavby rodinných domů. Jihovýchodní orientace. Předokenní žaluzie v OP a ložnici na slunečnou stranu. Lokalita klid, soukromí, rodinná atmosféra. Před domem 1 stání, prostorná ulice obytné zóny. Zahrada založená s travnatou plochou a terasou. Elektřina/voda. Plocha vlastní zahrady 55 m2, celkem pozemek 184 m2 vč. zastavené plochy a plochy pro parkování před domem a předzahrádky. Nájemní smlouva na 1 rok s možností prodloužení, preferujeme 2 a více let ( k dispozici i na více let). Měsíční nájem 55.000,- Kč + služby cca 5.800,- / měs. (plyn, elektřina = MND, voda PVK, směsný odpad + bio AVE svoz 1x týdne, vše zálohově, každý rok vyúčtování). Internet dle výběru klienta a služeb v místě, vzduch 5G + k dispozici nově optika, provozovatel CETIN. Spotřeba nastavena a ověřena reálným provozem domu 2+2 rodina. Nájemné se platí k 20. v měsíci na měsíc následující. Součástí nájemní smlouvy Inflační doložka a povinnost sjednat pojištění odpovědnosti. Jistota (kauce) 110.000,- Kč. První nájem a jistota splatná při podpisu Nájemní smlouvy. Odměna RK 60.000,-. Upozorňujeme, že Zájemce bude požádán před prohlídkou, o vyplnění krátkého formuláře. Rádi bychom se o Vás dozvěděli základní informace. Preferujeme bez domácích mazlíčků a nekuřáky. Energetická náročnost D podle kategorie Primární energie z neobnovitelných zdrojů, z hlediska Celkové dodané energie třída B, plynový kondenzační kotel Buderus se zásobníkem TUV, radiátory, podlahové konvektory. Dům vybaven: - kuchyňská linka vč. spotřebičů - šatní sestava v komoře a chodbě - TV stěna (případně k dispozici i sedací souprava) - jedem pokoj vestav. nábytek, sloužil pro dětský pokoj dvou slečen - interiérové osvětlení, zrcadla a nábytek v koupelnách, - šatna s úložným prostorem - předokenní žaluzie el. ovládané - založená zahrada, trávník, terasa Dispozice: 1.NP: vstupní chodba, technická místnost s úložným prostorem WC, obývací pokoj s kuch. koutem, garáž 18 m2 el. ovládané vrata 2.NP: chodba, 2 dětské pokoje (nebo dětský pokoj a pracovna), ložnice se šatnou koupelna s vanou, sprchou a místem pro pračku a sušičku, samostatné WC. Dům zkolaudován v roce 2010 a byl užíván pouze majitelem do současné doby. V domě proběhla technická údržba, komplet malířské práce a drobné opravy.
Martin Hušpauer

Martin Hušpauer

Senior Sales Manager

+420 725 293 493
huspauer@ep.cz Nemovitosti v nabídce

Kontaktujte nás

Cena50 000 Kč za měsíc
Užitná plocha116 m²
Podlaží-
ParkováníAno 2
Výtahne
Balkón3 m²
Lodžie-
Terasa-
Sklep-
PENBD - Méně úsporná
Referenční číslo179
Newsletter

Nejnovější nabídkydo Vašeho e-mailu

Každý měsíc Vás budeme informovat o nejnovějších nemovitostech v naší nabídce.