Rent flats 3+KT, 60 m² - Praha - Libeň

24 000 Kč za měsíc

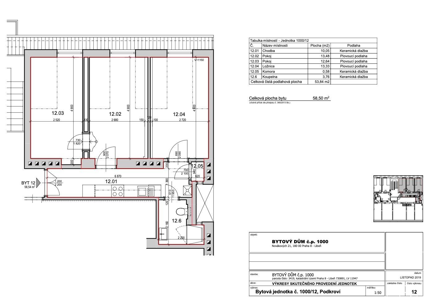
Useable area 60 m²

Novákových, Praha

Pronájem bytu 3+1 60 m² Novákových 1000/21, Praha 8 - Palmovka Měsíční nájem: 24.000 Kč + poplatky (cca 6.000 Kč) Kauce: 48.000 Kč Provize RK: ve výši jednoho měsíčního nájmu + DPH K dispozici ihned Nabízím k pronájmu částečně vybavený slunný byt v družstevním vlastnictví o dispozici 3+1 a podlahové ploše 60 m2, který se nachází v 5.NP dobře udržovaného domu bez výtahu v ulici Novákových, Praha 8 – Libeň, v docházkové vzdálenosti od stanice tramvaje a metra Palmovka. Popis bytu Byt je rozdělený na 3 pokoje, chodbu s kuchyňskou linkou a komorou, obývací pokoj, pracovnu, ložnici, koupelnu s toaletou a sprchou. Jednotka je plná denního světla a pokoje jsou orientovány na severozápadní stranu do vnitrobloku. Vybavení bytu V bytové jednotce je k dispozici nová kuchyňská linka s varnou deskou, myčkou, pečící troubou, digestoří, pračkou a ledničkou. Byt má vlastní plynový kotel pro vytápění a ohřev teplé vody. V obývacím pokoji je sedací souprava, komoda, jídelní stůl a čtyři židle. V ložnici je dvoulůžková postel, noční stolek a šatní skříň. V pracovně je kombinovaná skříň a křeslo. V zádveří chodby je šatní skříň a věšák. S kuchyňské části je vstup do úložné komory. V koupelně je sprchový kout, toaleta a umyvadlo. V bytě je možnost připojení společné TV antény a Internetové připojení. Náklady spojené s pronájmem bytu Měsíční nájemné – 24 000 Kč Měsíční paušál na služby – 3 000 Kč Měsíční záloha na elektřinu – 1 000 Kč (převod smlouvy PRE) Měsíční záloha na plyn – 2 000 Kč (převod smlouvy PP) Kauce – 48 000 Kč Provize RK – 29 040 Kč vč. DPH Podmínky pronájmu V současné době je byt volný a můžete se ihned nastěhovat. Nájemní smlouva na 1 rok s možností prodloužení. Smlouvu s dodavateli energie PRE (elektřina) a PP (plyn) převádí majitel na nájemce. Byt je vhodný maximálně pro 3 osoby. Lokalita Bytový dům se nachází ve vedlejší ulici Novákových. Parkování možné na ulici (modrá zóna). Výborná dopravní dostupnost do centra města a jen 3 minuty chůze od domu se nachází stanice metra B, autobusu a tramvaje Palmovka. Nákupní možnosti a vše potřebné pro každodenní život najdete pár kroků od domova. Nedaleko bytu se nacházejí Rohanský a Libeňský ostrov, ideální na procházky, vyjížďky na kole či můžete využít multifunkční sportovní centrum Palmovka nabízí posilovnu, aerobní sál a lezeckou stěnu s převisy s výškou přes 8 metrů.
Miroslav Ocelák

Miroslav Ocelák

Senior Sales Manager

+420 608 700 900
ocelak@ep.cz Current listings

Contact us

Rent24 000 Kč za měsíc
Living costs6000
Useable area60 m²
Level6. NP
Parking
Elevatorne
Balcony-
Loggia-
Terrace-
Cellar-
PENBE - Nehospodárná
Reference number177
Newsletter

Our latest offersin your e-mail

We are going to inform you about our latest property offersevery month.