Sale flats 3+KT 72 m², Přezletice

11 490 000 Kč

Useable area 72 m²

Hrušková, Přezletice

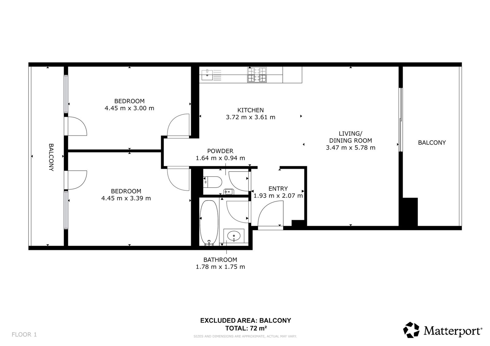
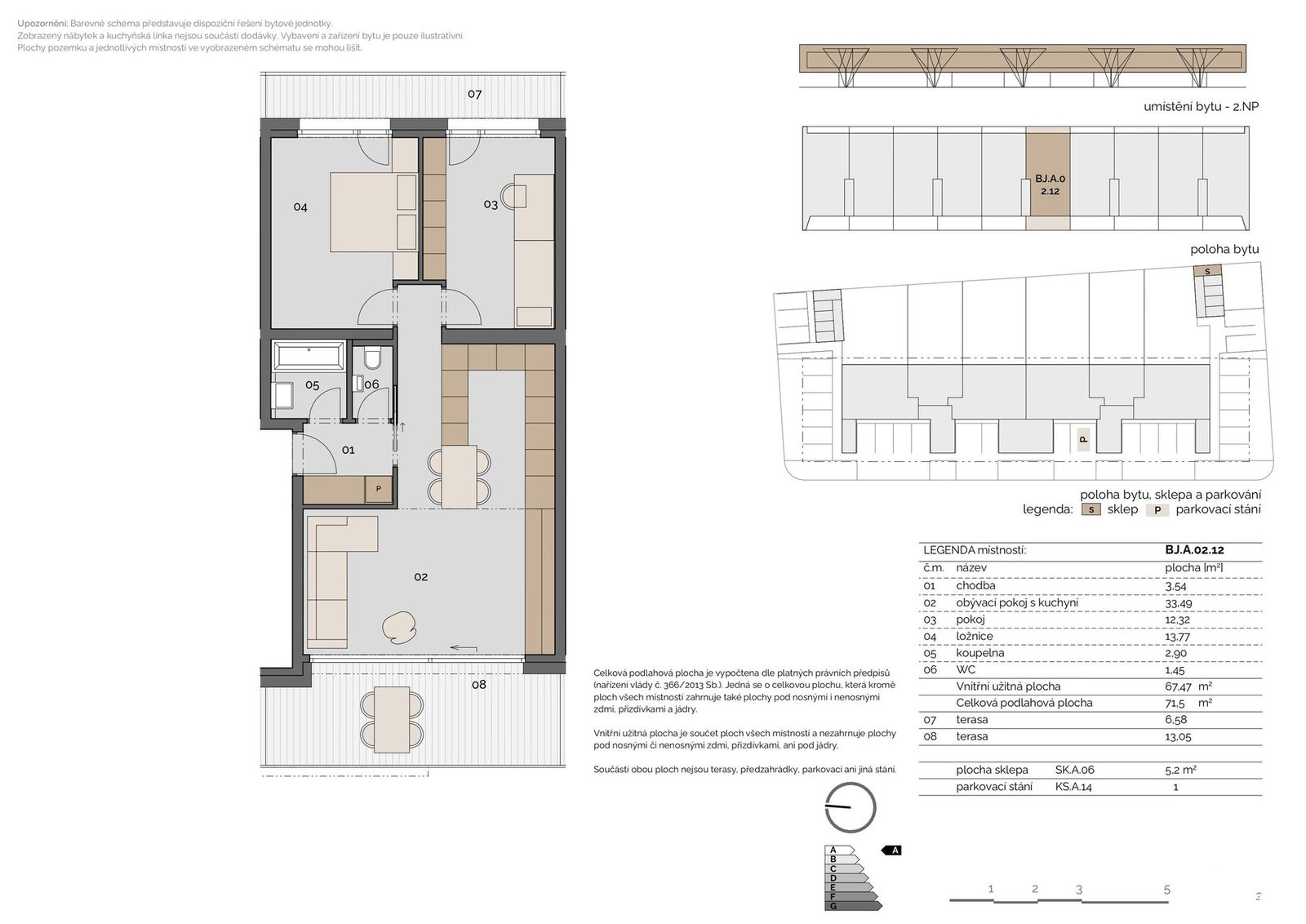
Bytový dům dokončen v roce 2022 v rámci projektu Ctěnický Háj. Na samotné hranici Prahy (městská část Praha – Vinoř) a Přezletic. Projekt se nachází přímo vedle Ctěnického háje, ulice Hrušková a Pod Vinoří. Byt je umístěn ve 2NP dvoupodlažní zděné Budovy energetické třídy A o dispozici 3+kk o celkové ploše 72m2 bez teras a sklepa. Netradičně pro 2 jednotky, vždy jeden společný vchod. Orientace ložnice na severovýchod, obývací pokoj a kuchyň na jih, jihozápad. Na obě strany budovy situovány kryté terasy o ploše 20,6m2, u obývací pokoje přes celou šíři bytu prosklený HS portál na terasu o ploše 13,6m2 s výhledem do přírody a Ctěnického háje. Opravdové soukromí. Bytový dům celkem 16 bytových jednotek. Dispozice: vstupní chodba (prostor pro vestavěnou šatní skříň a pračku), koupelna s vanou, samostatné WC, obývací pokoj s prostorem pro obývací část a prostorově oddělenou kuchyň se sezením, dvě ložnice s terasou. Součástí bytu je prostorná sklepní 5,2m2 kóje a jedno kryté parkovací stání (širší 3,4m) v části jen dvou parkovacích stání, přímo vedle vchodu k bytu. Součástí domu je kočárkárna pro parking dětských kol a kočárků. Infrastruktura: plnohodnotné veřejné komunikace, veřejné osvětlení, elektro, vodovod, kanalizace, projekt nakládá s dešťovou vodou v místě, urbanistický koncept principu trvale udržitelného rozvoje, park, dětské hřiště, sadové úpravy, les, příroda, cyklostezka, park, Ctěnický potok a rybník, zámek Ctěnice. MHD a doprava v přímém napojení, do 10 min. chůzí, do 20 min metro "C" Letňany. Občanská vybavenost Vinoře, moderní mateřská školka a škola přímo v Přezleticích. Vytápění lokální elektrické podlahové, el. topné kabely s vlastním ovládáním pro každou místnost. Ohřev TUV centrálně kompaktním tepelným čerpadlem vzduch/ voda v kombinaci s centrálním zásobníkem TUV. Vlastní rekuperační jednotka typu WAFE 201, systém řízeného větrání s regulací CO2 a rekuperací odpadního tepla vč. ovládání pomocí webového rozhraní. Jednoduše vyměnitelné filtry dle Vaší potřeby. Elektroměr pro každou jednotku zvlášť. Dálkově odečítané vodoměry, dodavatel VHS Benešov. Předpis záloh vč. společných nákladů na provoz Budovy zahrnující TUV a zálohy na vodné/stočné stanoveny na 5.144,-/měs. . Skutečnost z vyúčtování roku 2025 je u typu 3kk od 4.350,- / měs. do 5.850,-/měs. podle spotřeby vody a počtu osob od 3 do 4. Skutečná spotřeba el. energie (vč. složky na vytápění) je okolo 2.500,- / měs. . Společenství vlastníků jednotek domu č.p. 651, Přezletice, správu zajištuje správce firma Blažek FM. V domě je realizována přípojka optického vlákna firmy CZ.NET, konektivita do lokality přiváděna vzduchem a distribuována optikou. Další varianty dle pokrytí vzduchem jiných providerů přes instalaci vlastních routerů v domácnosti.
Martin Hušpauer

Martin Hušpauer

Senior Sales Manager

+420 725 293 493
huspauer@ep.cz Current listings

Contact us

Price11 490 000 Kč
Useable area72 m²
Level2. NP
ParkingAno 1
Elevator-
Balcony-
Loggia-
Terrace21 m²
Cellar5 m²
PENBA - Mimořádně úsporná
Reference number192
Newsletter

Our latest offersin your e-mail

We are going to inform you about our latest property offersevery month.